Remise Torstraße
Headline Text
| Standort | Berlin-Mitte | |
| Auftrag | privat | |
| Fläche | 189 qm | |
| Zeitraum | 2019-2022 | |
| Leistung | Bestandsanalyse, Genehmigungsplanung | |
| Umfang | Neubau, Fassadengestaltung, Begrünung |
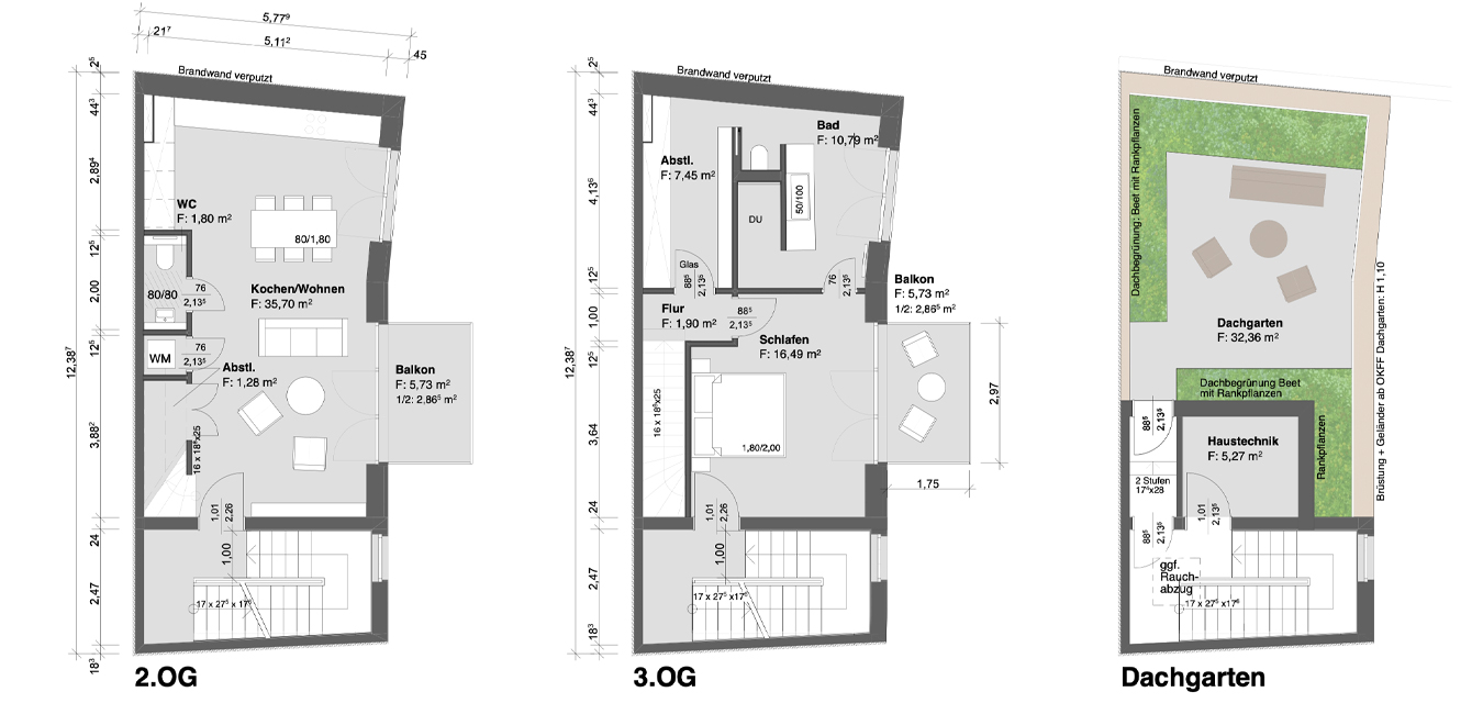
Auf der Brandwand des Nachbarn im Hof eines Berliner Altbaus in Berlin Mitte sind noch die Konturen einer ehemals dort stehenden Remise zu erahnen. Die wird nun neu errichtet und bietet Raum für 3 Wohnungen, davon eine barrierefrei und eine über 2 Geschosse mit Dachterrasse.
Städtebaulich bietet die neue Remise nun wieder den Abschluss eines langgestreckten Hofes. Sie wertet mit der verklinkerten Fassade, die an alte Remisen erinnern soll, den Blick auf die ehemals leere alte Brandwand deutlich auf. Der Hof wird entsiegelt, neu begrünt und hat nun endlich Aufenthaltsqualität. Aus Gründen der Anleiterbarkeit durch die Feuerwehr werden die beiden oberen Etagen zu einer großzügigen Wohnung mit Dachterrasse auf dem begrünten Dach zusammengefasst. Die beiden unteren Apartments bieten mit schöner Wohnküche, Bad, Gäste-WC und Schlafzimmer viel Komfort für einen kleinen Haushalt. Drei neue Wohnungen, wo vorher nur der Schatten eines Gebäudes zu sehen war.