Hausarztpraxis
Headline Text
| Standort | Berlin | |
| Auftrag | privat | |
| Fläche | 22 qm | |
| Zeitraum | 05.2021-08.2021 | |
| Leistung | Bestandsanalyse, Planung, Bauüberwachung | |
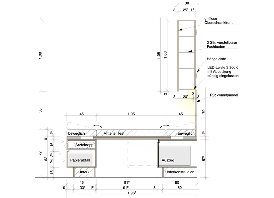
| Umfang | Neugestaltung, Sanierung, Ausbau, Möblierung |
Eine neue Ärztin in einer Gemeinschaftspraxis bringt frischen Wind in den Alltag. Das muss man auch in Ihrem Behandlungsraum sehen. Eine einladende frische Atmosphäre, gute Organisiation des Behandlungsablaufs, funktionales aber auch stimmungsvolles Licht, aufgefrischte schöne Altbausubstanz und Vorhänge für entspannte Akustik...
...spiegeln die Qualität und die Frische der neuen Frau im Team wieder. Der Behandlungsbereich wird optimal den Arbeitsabläufen der Behandlung angepasst. Ein seitlicher Paravent schafft Intimität beim Umziehen oder bei der Untersuchung. Am Arbeitsplatz kann in angenehmer Atmosphäre gesprochen und beraten werden, ein leichter Pouf bietet Platz auch für größere Familien. Die frischen Blau- und Grüntöne korrespondieren mit dem kleinen Park vorm Haus und lassen den frischen Wind förmlich spüren.
Rückblick