Dachgeschoss Seumestraße

Headline Text

Standort   Berlin-Friedrichshain
Auftrag   privat
Fläche   200 qm
Zeitraum   01.2008-03.2010
Leistung   Bestandsanalyse, Planung, Bauantrag, Bauüberwachung
Umfang   Dachgeschossneubau, Aufzuganbau, Ausbau, Möblierung, Begrünung

 

Ein Berliner Altbaudach, bestehend aus Vorderhaus und ungefähr anderthalb Meter tiefer gelegen, Seitenflügel und Gartenhaus. Einmal abreißen und neu bauen in Holzbauweise, die Flachdächer begrünen. Für kühles Klima sorgt Zellulosedämmung. Es entstehen 2 großzügige Wohnungen, beide über den Aufzug am Vorderhaus erschlossen...

Große, bodentiefe Dachflächenfenster in dem auf 60° steiler gestellten Vorderhausdach  und eine durchschnittliche Deckenhöhe von 3,20 m schaffen Großzügigkeit. Die Vorderhaus Wohnung verfügt über einen straßenseitigen Balkon und eine große Südterrasse zum Hof. Diese Terrasse liegt direkt vor dem Wohnzimmer, das in die geräumige Küche mit Essbereich übergeht, daran anschließend für die Gäste Bad und Schlafzimmer. Nicht öffentliche Räume liegen auf der anderen Seite des Daches. Hier befindet sich das Schlafzimmer zum Hof, Masterbad und Hauswirtschaftsraum, sowie ein großzügiges Arbeitszimmer. Die Hinterhauswohnung mit nahezu identischer Raumorganisation rundet diesen Berliner Dachgeschossneubau ab.

n-vier architekten, interior design, attic conversion Berlin-Friedrichshain, fitted kitchen, swing, parquet, wallpaper
n-vier architekten, interior design, attic conversion Berlin-Friedrichshain, wallpaper door
n-vier architekten, interior design, attic conversion Berlin-Friedrichshain, interior design, stairs
n-vier, attic conversion Berlin-Friedrichshain, roof terrace, roof garden, extension, timber construction
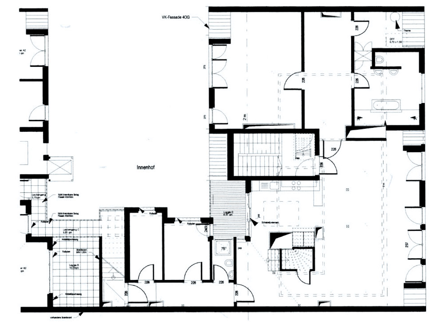
n-vier architekten, interior design, attic conversion Berlin-Friedrichshain, interior design, floor plan
n-vier architekten, attic conversion Berlin-Friedrichshain, roof terrace, roof conversion, roof truss
n-vier, attic conversion Berlin-Friedrichshain, dormer windows, sleeping area, bedroom
n-vier, attic conversion Berlin-Friedrichshain, bathroom, interior design
n-vier, attic conversion Berlin-Friedrichshain, bathroom, shower wall, guest bathroom
n-vier, attic conversion Berlin-Friedrichshain, parquet, built-in closet
n-vier architekten, attic conversion Berlin-Friedrichshain, exposed brickwork, parquet, apartment hallway
n-vier, attic conversion Berlin-Friedrichshain, dormer windows, fireplace, parquet, brick wall

Rückblick

<< Projekte

Rückblick